Неопубликованная запись
Монтаж котельной, отопления, тёплого пола, водоснабжения и канализации в частном доме
Комплексный монтаж котельной, отопления, тёплого пола, водоснабжения и канализации в частном доме в поселке Таширово Наро-Фоминского городского округа. Котёл Baxi 31 кВт, бойлер 200 л, водоподготовка, автоматика.
Выполнили комплексный монтаж инженерных систем в частном доме: котельной, отопления, тёплого пола, водоснабжения, канализации и автоматики.
В основе котельной установлен одноконтурный газовый котёл Baxi ECO Life 31 кВт с раздельным дымоходом 80/80, бойлером косвенного нагрева Stout на 200 литров, узлом подпитки, расширительными баками, циркуляционным насосом ГВС и стабилизатором напряжения.
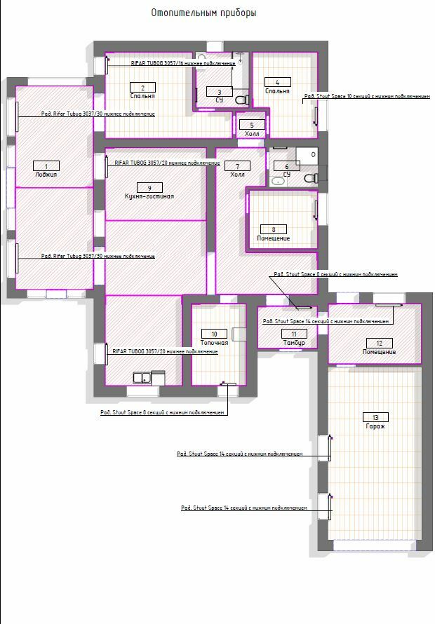
Для системы отопления смонтировали радиаторное отопление на 11 приборов, коллекторы STOUT, насосно-смесительный узел для тёплого пола, наружные шкафы, магистрали из сшитого полиэтилена и водяной тёплый пол площадью 118,2 м².
Также выполнили монтаж утепления, матов тёплого пола, демпферной ленты и автоматики с комнатными термостатами и сервоприводами для управления зонами отопления.
По водоснабжению установлен узел ввода с фильтрацией, система водоподготовки для воды из скважины, гидроаккумулятор, коллекторы и магистрали ХВС/ГВС, выполнена разводка точек водоснабжения.
Дополнительно смонтирована внутренняя канализация, после чего проведены заполнение системы подготовленной водой, гидравлические испытания, пуск и наладка оборудования.
В результате заказчик получил полностью собранную и согласованную инженерную систему дома: с надёжной котельной, удобным управлением отоплением по зонам, горячей водой, подготовкой воды из скважины и аккуратной скрытой разводкой коммуникаций.




