Неопубликованная запись
Монтаж отопления, водоснабжения и котельной в Ерюхино
Выполнили монтаж газового котла Baxi Eco Life 24 кВт, радиаторов, тёплого пола, водоснабжения, канализации и водоснабжения бани в частном доме в Ерюхино.
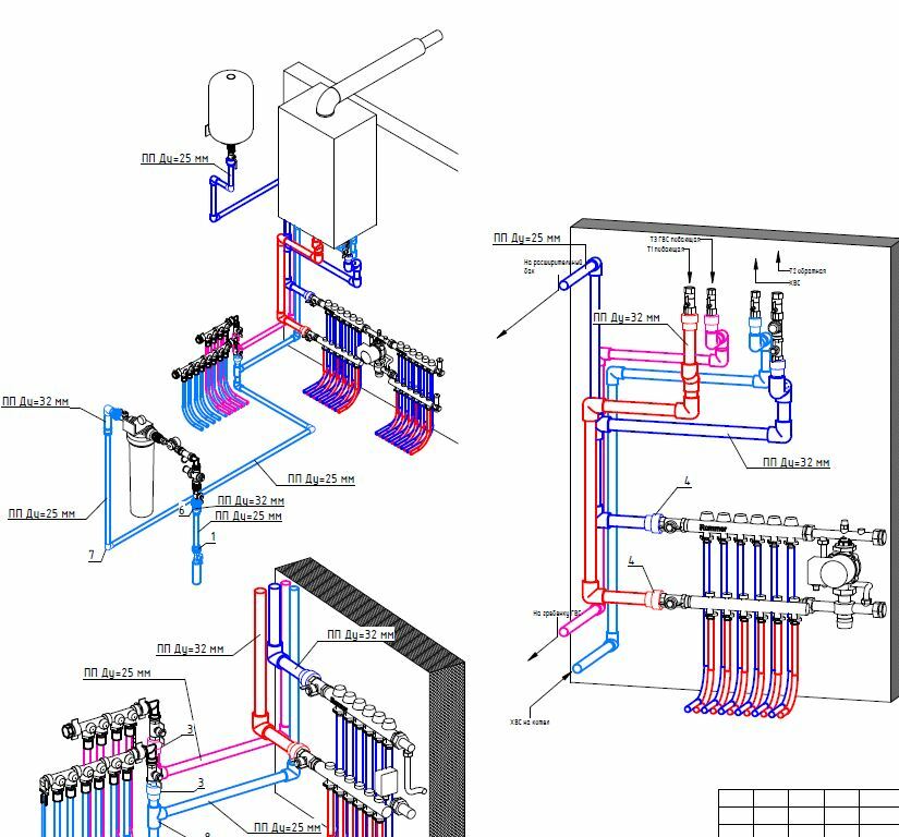
Выполнили монтаж инженерных систем в частном доме в Ерюхино с устройством котельной, отопления, тёплого пола, водоснабжения и внутренней канализации. В основе системы установлен двухконтурный газовый котёл Baxi Eco Life 24 кВт, который обеспечивает отопление дома и подготовку горячей воды.На объекте смонтировали узел водоподготовки, коллекторы отопления, тёплого пола и водоснабжения, выполнили монтаж радиаторов Rifar с нижним подключением, магистралей отопления и водоснабжения из сшитого полиэтилена, а также внутренней канализации трубами Sinikon. Дополнительно выполнили устройство водяного тёплого пола с матами, закрытую разводку труб к сантехническим точкам и пусконаладочные работы с заполнением системы теплоносителем.Отдельно выполнили монтаж водоснабжения бани: установили унитаз, раковину, смеситель, душевую кабину, накопительный водонагреватель, греющий кабель, узел водоподготовки и внутреннюю канализацию. В результате заказчик получил готовую инженерную систему дома и бани с удобной эксплуатацией, продуманной разводкой и надежной работой отопления и водоснабжения.
