Неопубликованная запись
Проект отопления, водоснабжения и канализации жилого дома в СНТ «Зверево»
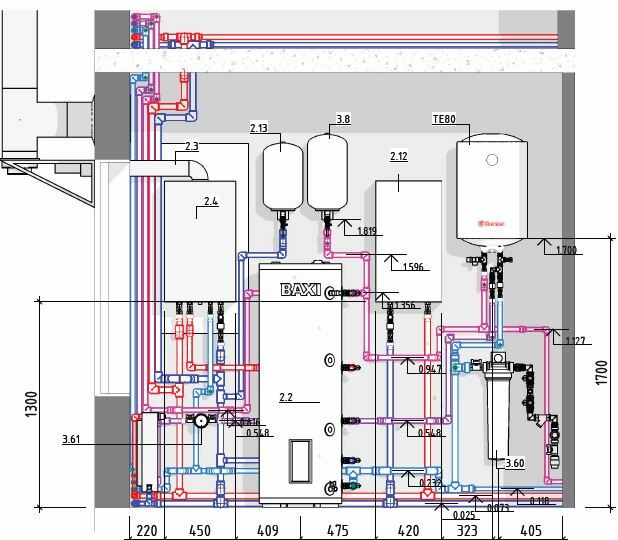
Разработали проект отопления, водоснабжения и канализации для жилого дома в п. Новофедоровское, СНТ «Зверево». Подробные чертежи, спецификация, схема топочной, дымоходы и вентканалы. По проекту заказчик самостоятельно реализовал инженерные коммуникации.
Разработали подробный рабочий проект инженерных систем для жилого дома в п. Новофедоровское, СНТ «Зверево».
В проект вошли отопление, водоснабжение, канализация, схема топочной, дымоходы и вентканалы, а также теплотехнический расчет с подбором основного оборудования.
Проект был подготовлен так, чтобы все решения были понятны на практике: с планами, аксонометрией, развертками, узлами обвязки и спецификацией материалов.
По разработанному нами проекту заказчик самостоятельно реализовал инженерные коммуникации на объекте.
Это хороший пример того, насколько важна грамотная проектная документация: когда все продумано заранее, монтаж можно выполнить без лишних переделок, спорных решений на месте и непредвиденных затрат.
Такой подход особенно удобен для тех, кто хочет контролировать работы, поэтапно закупать материалы или выполнять часть монтажа своими силами.
В проекте предусмотрены радиаторное отопление, система горячего и холодного водоснабжения, рециркуляция ГВС, внутренняя канализация, дымоходы и вентиляционные каналы.
Для дома были рассчитаны теплопотери по помещениям, а суммарная тепловая нагрузка составила около 23,2 кВт, что позволило подобрать понятное и сбалансированное решение для дальнейшей реализации.


