
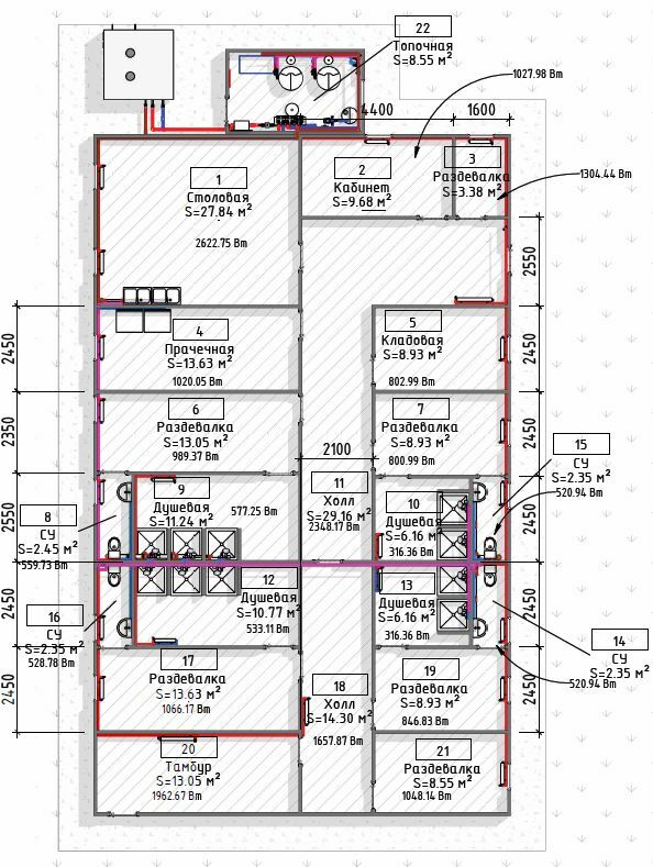
Выполнили подготовку рабочей документации и монтаж оборудования теплогенераторной для нового модульного блочного здания.
Проект включал подключение наружной теплогенераторной установки и интеграцию инженерных систем здания: отопления, холодного и горячего водоснабжения, а также канализации.
В рамках работ были смонтированы электрический настенный котёл Stout SEB 27 мощностью 27 кВт, два бойлера косвенного нагрева по 300 литров с двумя теплообменниками, насосные группы, распределительный коллектор, гидравлический разделитель, расширительные баки, циркуляционные насосы ГВС, узел ввода ХВС, трубопроводы отопления, ХВС, ГВС и сбросная линия канализации.
Также выполнен монтаж арматуры, измерительных устройств, креплений, консолей и тепловой изоляции.Отдельное внимание было уделено автоматизации системы: выполнено подключение и наладка насосов, датчиков и контролирующих устройств, а также монтаж системы автоматической подачи воды, включая подачу воды из дозировочной ёмкости.
После завершения монтажных работ проведены гидравлические испытания систем отопления, ХВС и ГВС, выполнены пусконаладочные работы всего комплекса.
В рамках работ были смонтированы электрический настенный котёл Stout SEB 27 мощностью 27 кВт, два бойлера косвенного нагрева по 300 литров с двумя теплообменниками, насосные группы, распределительный коллектор, гидравлический разделитель, расширительные баки, циркуляционные насосы ГВС, узел ввода ХВС, трубопроводы отопления, ХВС, ГВС и сбросная линия канализации.
Также выполнен монтаж арматуры, измерительных устройств, креплений, консолей и тепловой изоляции.Отдельное внимание было уделено автоматизации системы: выполнено подключение и наладка насосов, датчиков и контролирующих устройств, а также монтаж системы автоматической подачи воды, включая подачу воды из дозировочной ёмкости.
После завершения монтажных работ проведены гидравлические испытания систем отопления, ХВС и ГВС, выполнены пусконаладочные работы всего комплекса.








