Неопубликованная запись
Монтаж топочной, Храма и часовни в селе Каменское
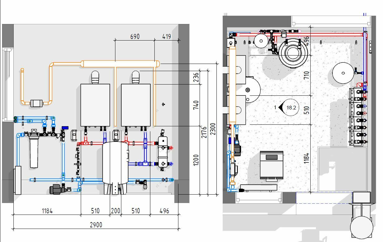
Выполнили монтаж инженерных сетей топочной, храма и часовни в селе Каменское: два котла Mizudo, бойлер, насосные группы, автоматика, водоподготовка, радиаторы, магистрали и пусконаладка.
Выполнили комплексный монтаж инженерных сетей топочной, храма и часовни в рамках объекта в с. Каменское Наро-Фоминского округа. На объекте смонтировали топочную на базе двух настенных газовых котлов Mizudo по 44 кВт, выполнили установку дымоходов, гидравлического разделителя, котлового коллектора, насосных групп заводской готовности, бойлера косвенного нагрева Stout 200 л, системы водоподготовки, гидроаккумулятора, электрической части котельной и автоматики дистанционного управления. Для надежной и удобной работы системы выполнили монтаж сервоприводов, насосов, накладных термостатов, циркуляционного насоса ГВС, узла подмеса, расширительных баков, магистралей отопления и водоснабжения, а также узла ввода с фильтрацией и возможностью подключения водоподготовки. Отдельно реализовали систему автоматики и удалённого управления отоплением, что сделало эксплуатацию объекта более удобной и контролируемой. Также выполнили монтаж инженерных сетей храма и часовни: установили коллекторы с гидрострелками, насосные группы, тепловую водяную завесу, узел резервной работы электрического котла, магистрали отопления из нержавеющей стали и радиаторное отопление на базе оборудования Stout. После завершения работ провели заполнение системы водой, гидравлические испытания и пусконаладку. В результате заказчик получил готовую, технически продуманную и надежную систему отопления и инженерных сетей для нескольких зданий объекта.


